top of page


DESIGN PACK
リノベーションに必要な資料をまとめて制作します。zoomでのヒアリングも含まれております。現場調査や対面打ち合わせなどのオプションも可能!

①平面図
ヒアリングを行い、ご希望の間取りや必要な空間、店舗なら客席数、オフィスなら社員数などを考慮してレイアウト致します。施工図・詳細図は別途となる可能性があります。

②CGイメージ
平面図や展開図、ご提案仕様書に基づき躯体などの現状も加味したよりリアルなCGを数枚製作いたします。

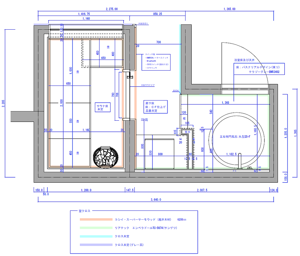
③展開図
キッチンや棚の高さ、素材の貼り分け、天井高さなど平面図では表現できない高さ関係を把握する図面を作成。

④仕様提案
ご希望やコンセプトに合わせて内装素材や設備機器のご提案、作り付けの家具の造作家具もご提案させて頂きます。

⑤立面図等その他図面
外壁改修を伴う場合やリノベーションの内容により必要な場合は立面図や断面図も制作します。

⑥お打合せ
基本ズームですが必要であれば対面も可能です。別途出張費などがかかる可能性があります。

リノベーション実施面積(㎡)による単価計算 8,000円+TAX/㎡~(店舗の場合1.3倍)
※最低価格は15万円+TAXで打ち合わせや店舗など検討事項が多い案件は1.3~1.5倍に単価がUPします。弊社基準。上記以外の手続きや書類・図面作製は別途とさせて頂きます。
※お支払いについては着手として50%、初稿提出時30%、修正等完了時残金となります。
CG 制作のみ
使い方は自由!建築CGパース制作
平面図や立面図、仕 様書、現地写真など資料をご提供頂ければ3DCG制作させて頂きます。お施主様だけではなく設計事務所・建設会社・不動産会社等業者様でも問題はありません。

1アングル1カット 基本 35,000円+TAX/枚~
※検討事項が多い案件は単価がUPします。弊社基準。
逆に範囲が狭い場合や同アングルで色違いなどは減額の可能性もあります。
その他下記もご注意ください
●初稿をご確認頂き、弊社ミスによる修正や明るさや暗さの調整などは制限なしに修正致します。
その他少しのアングル調整や素材の変更は2回程度対応させて頂きます。(ご指示を頂いたアングルを全く方向から変わる場合は別途)
●当初頂いた資料から形状が変わる、大幅な仕様の変更などは別途必要になりますのでご了承ください(弊社判断)
●制作後 制作現場の場所や氏名等は出さない条件で制作例としてインスタグラムへ投稿させて頂く場合がございます。
bottom of page








